784 Banyan Lane London North, Ontario N6G 0A6

3 Bedroom 3 Bathroom 1,600 - 1,799 sqft
Fireplace Central Air Conditioning, Air Exchanger Forced Air Landscaped

$507,876

Maintenance, Common Area Maintenance

$77 Monthly

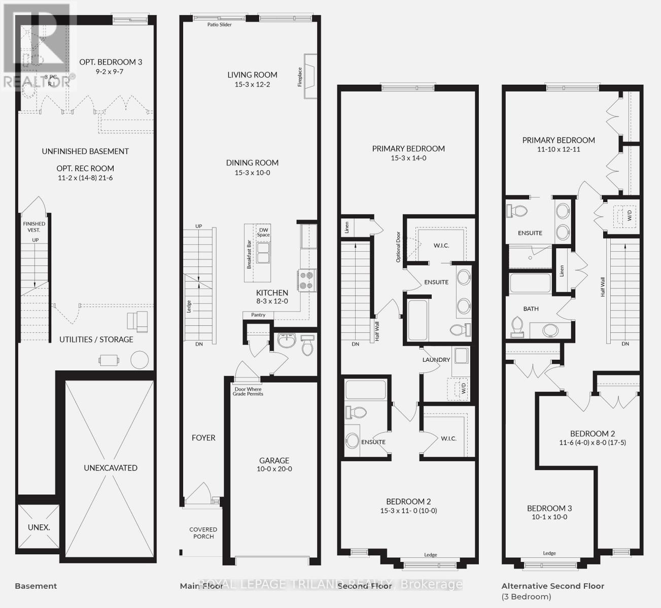
This unit is complete and ready to go!! Take advantage of the new government rebates and get into a brand new home with a quick closing! Werrington Homes is now nearing 50% SOLD at their newest project "The North Woods" in the desirable Hyde Park community of Northwest London. The North Woods in the desirable Hyde Park community of Northwest London. The project consists of 45 two-storey contemporary townhomes priced from the low $500's. With the modern family & purchaser in mind, the builder has created 3 thoughtfully designed floorplans. The end units known as "The White Oak", offers 1686 sq ft above grade, 3 bedrooms, 2.5 bathrooms & a single car garage. The interior units known as "The Black Cedar" offers 1628 sq ft above grade with 2 bed or 3 bed configurations, 2.5 bathrooms & a single car garage. The basements have the option of being finished by the builder to include an additional BEDROOM, REC ROOM & FULL BATH! As standard, each home will be built with brick, hardboard and vinyl exteriors, 9 ft ceilings on the main, luxury vinyl plank flooring on the main and upper floor, quartz counters, second floor laundry, paver stone drive and walkways, ample pot lights, tremendous storage space & a 4-piece master ensuite complete with tile & glass shower & double sinks! The North Woods location is second to none with so many amenities all within walking distance! Low monthly fee ($77 approx.) to cover common elements of the development (green space, snow removal on the private road, etc).This listing represents "The Black Cedar" interior unit base price 3 bedroom plan. Interior images are from 786 Banyan, which are the identical finishes for this unit. NOTE: Price includes proposed 2026 HST rebates. Final rebate amount is subject to the passing of Provincial/Federal legislation and purchaser eligibility (Primary Residence/Qualifying Rental) as per government guidelines. (id:38414)

Property Details

MLS® Number X12952528
Property Type Single Family
Community Name North E
Amenities Near By Park, Place Of Worship, Public Transit, Schools
Community Features Pets Allowed With Restrictions
Equipment Type Water Heater - Tankless, Water Heater
Features Level, In Suite Laundry, Sump Pump
Parking Space Total 2
Rental Equipment Type Water Heater - Tankless, Water Heater

Building

Bathroom Total 3
Bedrooms Above Ground 3
Bedrooms Total 3
Age New Building
Amenities Fireplace(s)
Appliances Water Heater - Tankless
Basement Development Unfinished
Basement Type Full (unfinished)
Cooling Type Central Air Conditioning, Air Exchanger
Exterior Finish Brick, Vinyl Siding
Fire Protection Smoke Detectors
Fireplace Present Yes
Fireplace Total 1
Foundation Type Poured Concrete
Half Bath Total 1
Heating Fuel Natural Gas
Heating Type Forced Air
Stories Total 2
Size Interior 1,600 - 1,799 Sqft
Type Row / Townhouse

Parking

Attached Garage
Garage
Inside Entry

Land

Acreage No
Land Amenities Park, Place Of Worship, Public Transit, Schools
Landscape Features Landscaped
Zoning Description R5-7

Rooms

Level Type Dimensions
Second Level Primary Bedroom 3.61 m x 3.94 m
Second Level Bedroom 2 3.54 m x 2.43 m
Second Level Bedroom 3 3.08 m x 3.03 m
Main Level Kitchen 2.51 m x 3.66 m
Main Level Dining Room 4.65 m x 3.05 m
Main Level Living Room 4.65 m x 3.66 m

Contact Us

Contact us for more information

Generating Captcha

Your Favourites

 

No Favourites Found